



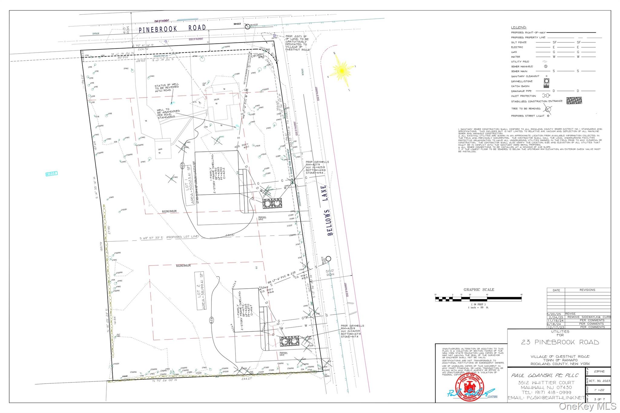
Prime Chestnut Ridge .88 acre flat property, approved to Build up to15,000 sq. ft. single family home, see survey for more details.
| 2 days ago | Listing first seen on site | |
| 2 days ago | Listing updated with changes from the MLS® |
Compare listings
Compare
Did you know? You can invite friends and family to your search. They can join your search, rate and discuss listings with you.